В Тамбове планируют ремонт объекта культурного наследия – Дома инженера Галкина
На работы по сохранению объекта культурного наследия – жилого дома, расположенного в Тамбове по улице Августа Бебеля, 28, в бюджете муниципалитета предусмотрено 35,3 миллиона рублей.
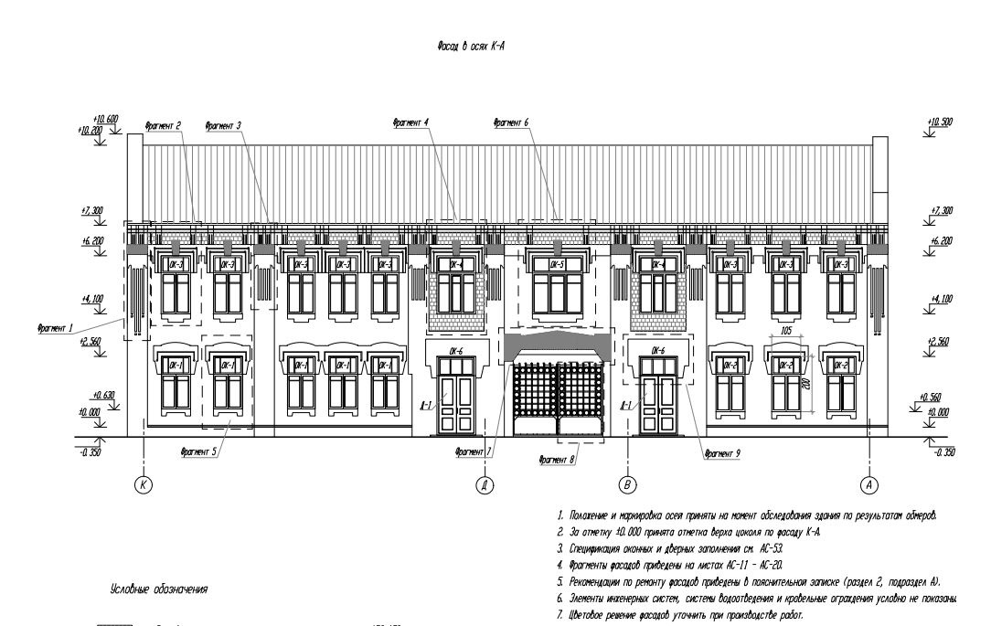
На работы по сохранению объекта культурного наследия – жилого дома, расположенного в Тамбове по улице Августа Бебеля, 28, в бюджете муниципалитета предусмотрено 35,3 миллиона рублей. Подрядчика определят в ходе электронного аукциона. Его итоги подведут 13 июня. Это уже вторые торги, объявленные муниципальной «Дирекцией жилищных услуг», первые – прошли 18 мая, но на них не было подано ни одной заявки.
Согласно проекту контракта работы, должны быть завершены к 4 декабря этого года. Менее чем за полгода специализированной строительной организации предстоит сделать ремонт и восстановление стропильной системы крыши и балок чердачного перекрытия, ремонт кровли, системы водостока, замена окон и дверей, ремонт фасадов, фундамента и лестницы, отделку в местах общего пользования.
Дом под № 28, построенный в начале 20 века, является бывшим доходным домом, принадлежавшим инженеру-строителю Василию Галкину. Он служил старшим штатным контролёром первого окружного акцизного управления Тамбовской губернии. Двухэтажное строение в стиле модерн было выполнено как сложный комплекс жилых зданий с сараями во дворе. Дом имел несколько подъездов, один из которых вел в квартиры, предназначенные для квартирантов.
Если пройти в одну из двух арок, то можно увидеть бревенчатый теремок, который и был непосредственным жилищем инженера Галкина. Дом двухэтажный, с асимметричной компоновкой. Над входной группой сохранился балкон. Оригинальная столярка частично сохранена. Уникальность дому придаёт необычная крыша.
Согласно проекту контракта работы, должны быть завершены к 4 декабря этого года. Менее чем за полгода специализированной строительной организации предстоит сделать ремонт и восстановление стропильной системы крыши и балок чердачного перекрытия, ремонт кровли, системы водостока, замена окон и дверей, ремонт фасадов, фундамента и лестницы, отделку в местах общего пользования.
Дом под № 28, построенный в начале 20 века, является бывшим доходным домом, принадлежавшим инженеру-строителю Василию Галкину. Он служил старшим штатным контролёром первого окружного акцизного управления Тамбовской губернии. Двухэтажное строение в стиле модерн было выполнено как сложный комплекс жилых зданий с сараями во дворе. Дом имел несколько подъездов, один из которых вел в квартиры, предназначенные для квартирантов.
Если пройти в одну из двух арок, то можно увидеть бревенчатый теремок, который и был непосредственным жилищем инженера Галкина. Дом двухэтажный, с асимметричной компоновкой. Над входной группой сохранился балкон. Оригинальная столярка частично сохранена. Уникальность дому придаёт необычная крыша.
Фото: конкурсная документация
Ирина Тягунова корреспондент Фото: google.com/mapsПоследние новости
Когда кнопка не откликается: драматичные истории ремонта HMI-панелей на производстве
Молчащий экран, застывший процесс и операторы, которые вдруг понимают, что без одной панели может остановиться целый завод.
За январь-март этого года аэропорт «Тамбов» обслужил более 7 тысяч пассажиров
По сравнению с аналогичным периодом прошлого года, пассажиропоток вырос на 11%.
113 человек написали "Тотальный диктант" в Тамбовской областной библиотеке имени Пушкина
Сегодня в Тамбове областная библиотека имени Пушкина стала одной из центральных площадок для проведения "Тотального диктанта" (0+).
Коррекция фиброза и возрастных изменений: когда показан эндотканевой лифтинг
Как современная технология помогает вернуть коже упругость, убрать отёки и улучшить рельеф без хирургии
Здесь вы можете узнать о лучших предложениях и выгодных условиях, чтобы купить квартиру в Уфе