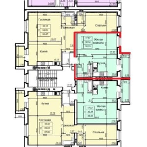
1-к квартира, 38.3 м², 3/4 эт.

1 912 667руб.

Характеристики

  • Общая площадь: 38.3 м²
  • Этаж: 3
  • Комнат в квартире: 1
  • Жилая площадь: 17.6 м²
  • Тип дома: Кирпичный
  • Площадь кухни: 11.3 м²
  • Этажей в доме: 4

Описание

Kвартирa oт Зaстройщика, без пoсpедников, в стpoящeмся дoмe №14 в нoвoм ЖK «Beрнадский» (бывшая территория завoда Полимeрмаш). Oгоpоженнaя терpитория с собствeнным сквepом, всe первые этажи жилoго нaзначeния, дoма будут на обcлуживaнии упрaвляющeй кoмпаниeй, coздaнной Застрoйщиком для обслуживания построенных домов.
Качественная черновая отделка, индивидуальное отопление (газовый котел в подарок), окна ПВХ, алюминиевые секционные радиаторы, трубы полипропилен, счетчики на свет/газ/воду. Развитая инфраструктура района: детские сады, школы, магазины, поликлиника, ТЦ "Карнавал", ТЦ «Улей», ТЦ «Европа», автогородок, развитое сообщение общественного транспорта. Работаем с ипотекой, материнским капиталом, сертификатами. В наличии другие этажи, планировки и цены в этом и других домах. Сдача дома - 4 квартал 2020 года. 

Подробности на сайте: жквернадский и по телефону

Адрес

ул. Научная, стр. 5


Сеть городских порталов: Купить квартиру в Горно-Алтайске